LG21FG3RG-T9 CTV – how to enter the service mode, adjustments and circuit diagram
To protect the picture tube and
FBT, the average beam current an d peak beam current may not to high. The beam current limit information and High
Voltage(H.V) tracking information are derived from the H.V voltage winding of
T401 (point A).
1. The contrast and brightness reduction of RGB is proportional to the voltage on the pin 48 of IC501.
2. As the beam current(slow),and H.V (fast) are changes, the voltage of point A is changed.
3. By the increase of beam current ,the point A voltage is decreased and this information is fed to pin 48 of IC501.
* Contrast reduction begins when V49 is below than 3.1V.
* By the more increasing of the beam current , the V48 decreased and eventually when this voltage is less than 1.8V the brightness reduction is started.
The H drive output is open
collector and active low, [the H-out TR should conduct during the low period of
output.]1. The contrast and brightness reduction of RGB is proportional to the voltage on the pin 48 of IC501.
2. As the beam current(slow),and H.V (fast) are changes, the voltage of point A is changed.
3. By the increase of beam current ,the point A voltage is decreased and this information is fed to pin 48 of IC501.
* Contrast reduction begins when V49 is below than 3.1V.
* By the more increasing of the beam current , the V48 decreased and eventually when this voltage is less than 1.8V the brightness reduction is started.
2. Under normal operation condition the duty cycle of the output pulse is 50%.
3. To ensure a smooth start/stop behavior of the horizontal deflection and protect the H-out TR, there are 3 different condition of H-drive output. During switch-on.
The horizontal output starts with the double frequency (31KHz) and with duty of 75%(off),25%(on).
After about 50mSec of switch-on.
The frequency is changed to normal value(15.625KHz) and duty cycle to 50%. During switching-off.
Also the frequency is switched to the double value and R.G.B drive is set to Max. and after 100mSec R.G.B is set to Min. and 50mSec later the H drive is switch-off.
4. The H drive pulse from the MICOM (IC 501) is amplified by the horizontal drive circuit, to get sufficient base drive current for the high voltage switching TR (Q401)
3. To ensure a smooth start/stop behavior of the horizontal deflection and protect the H-out TR, there are 3 different condition of H-drive output. During switch-on.
The horizontal output starts with the double frequency (31KHz) and with duty of 75%(off),25%(on).
After about 50mSec of switch-on.
The frequency is changed to normal value(15.625KHz) and duty cycle to 50%. During switching-off.
Also the frequency is switched to the double value and R.G.B drive is set to Max. and after 100mSec R.G.B is set to Min. and 50mSec later the H drive is switch-off.
4. The H drive pulse from the MICOM (IC 501) is amplified by the horizontal drive circuit, to get sufficient base drive current for the high voltage switching TR (Q401)
How to enter the service mode
Press the OK buttons on both TV set and Remote Controller at the same time to get into SVC mode.
CDL Data Adjustment (LINE SVC-0)
1) Press the SVC button to get into the SVC-0 Mode.
2) Press the Channel UP/DOWN button to select CDLl2.
3) Press the Volume UP/DOWN button until the CDL data is the same as the Table below.
1) Press the SVC button to get into the SVC-0 Mode.
2) Press the Channel UP/DOWN button to select CDLl2.
3) Press the Volume UP/DOWN button until the CDL data is the same as the Table below.
4) Press the OK button to
memorize the data.
OPTION Data Adjustment (OPTION-l,OPTION-2)
1) Press OK buttons on both TV set and Remote Controller at the same time to get into SVC mode.
2) Press the Yellow button several times to find OPTION data.
3) Input the correspond OPTION data referring to Table below with the numeric buttons.
4) Press the OK button to memorize the data.
1) Press OK buttons on both TV set and Remote Controller at the same time to get into SVC mode.
2) Press the Yellow button several times to find OPTION data.
3) Input the correspond OPTION data referring to Table below with the numeric buttons.
4) Press the OK button to memorize the data.
AGC Adjustment (SERVICE 1)
1) Connect RF signal (70dBt0.2d8) and turn on the TV.
Standard adjustment Channel-EU 05 Ch. (frf= 175.25MHz)
2) Press the OK buttons on TV set and Remote Controller at the same time to get into SVC-0 mode.
3) In SVC-0 option, AGCTO is meant for AGC.
4) Press the Volume UP/DOWN button until the AGC Voltage is the same as the Table below.
5) Press the OK button to memorize the data.
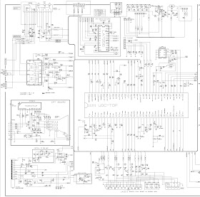
Circuit diagram [SMPS and deflection]
Micom-Chroma schematic
White Balance Adjustment.(LINE
SVC-0)
NOTE : This adjustment should be
performed after screen voltage adjustment.
1) Tune the TV set to receive an 100% white pattern.
2) Press OK buttons on TV set and remote controller at the same time to get into SVC mode.
3) Use the CH CH Key to chose adjustment item.
4) Use the VOL VOL Key to change item data.
5) Adjustment.
a) Make the picture luminance 4.5 changing the " CONTRAST" and "BRIGHTNESS".
b) Adjust X data of low light with BLO-R and Y data with BLO-B.
c) Adjust X dada of High light RG and Y data with BG.
d) Repeat steps b & c until both low & high light hare same as shown below.
1) Tune the TV set to receive an 100% white pattern.
2) Press OK buttons on TV set and remote controller at the same time to get into SVC mode.
3) Use the CH CH Key to chose adjustment item.
4) Use the VOL VOL Key to change item data.
5) Adjustment.
a) Make the picture luminance 4.5 changing the " CONTRAST" and "BRIGHTNESS".
b) Adjust X data of low light with BLO-R and Y data with BLO-B.
c) Adjust X dada of High light RG and Y data with BG.
d) Repeat steps b & c until both low & high light hare same as shown below.
Screen voltage Adjustment
1) Connect the probe of oscilloscope
to the RK (Red Cathode) of CPT Board.
2) Set the oscilloscope to 50V/div and 20Us/div and after putting GND line upon the lowest grid line of the scope by pressing GND button, enter into DC mode.
3) Tune the TV set to receive a PAL-BG O5GH.
4) Adjust Screen Volume of FBT so that the (DC 150).
2) Set the oscilloscope to 50V/div and 20Us/div and after putting GND line upon the lowest grid line of the scope by pressing GND button, enter into DC mode.
3) Tune the TV set to receive a PAL-BG O5GH.
4) Adjust Screen Volume of FBT so that the (DC 150).
TDA7297
15+15w dual bridge amplifier
features
Wide supply voltage range (6.5v-18v)
Minimum external components
Internally fixed gain
Stand-by & mute functions
Thermal overload protection
Short circuit protection
15+15w dual bridge amplifier
features
Wide supply voltage range (6.5v-18v)
Minimum external components
Internally fixed gain
Stand-by & mute functions
Thermal overload protection
Short circuit protection




